Gli specialisti nella compravendita di immobili a Trieste e provincia
MUGGIA CENTRO VISTA MARE
in piccola palazzina completamente ristrutturata nel 2024 con ascensore vendesi splendido
appartamento primingresso composto da : atrio, soggiorno, cucina all'americana, camera da letto
bagno, riscaldamento autonomo con pompa di calore e climatizzazione, Cl. C
Prezzo: 250.000,00 €
MUGGIA CENTRO
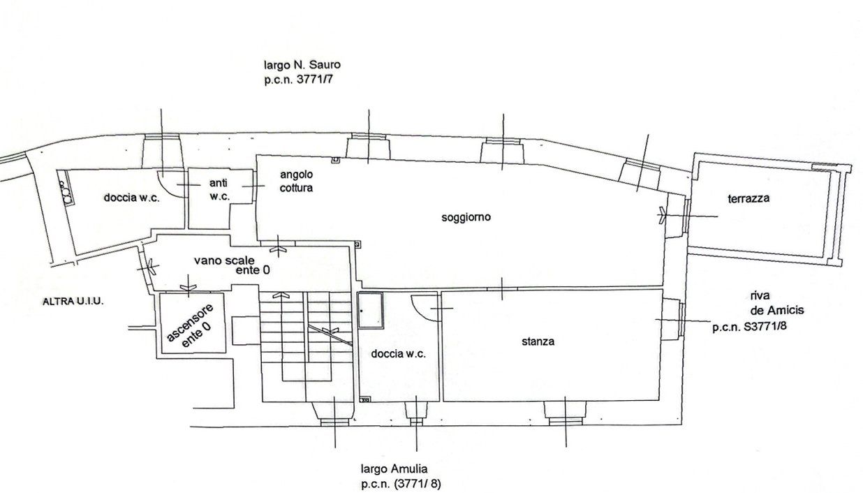
MUGGIAcentro strepitosa vista mare vendesi in piccola palazzina completamente ristrutturata nel
2024 con ascensore senza barriere architettoniche vendesi esclusivo ultimo piano primingresso
Composto da : atrio, salone, cucina all'americana, tre camere da letto, bagno, cl. C € 440.000,00
possibilità posti macchina completamente arredato con vista mare vendesi in palazzina di nuova
osto auto, cl. C
Prezzo: 440.000,00 €
Nuovo titolo
L'agenzia e i professionisti dell'intermediazione immobiliare
Altipiano Immobiliare è la vostra agenzia di fiducia per la compravendita di immobili di ogni tipologia a Trieste e provincia. La nostra pluriennale esperienza nella valutazione di immobili e locali commerciali, coniugata all'ampia scelta di proposte, sono i nostri veri punti di forza. Se siete alla ricerca di un'agenzia immobiliare con professionisti affidabili e competenti per la valutazione, la compravendita di immobili a Trieste, Altipiano Immobiliare è il vostro punto di riferimento. La nostra rete di contatti si estende in tutta la provincia per offrirvi delle bellissime soluzioni e realizzare i vostri sogni. Vi aspettiamo nella nostra sede di Prosecco per conoscere le proposte immobiliari più vicine alle vostre possibilità e ai vostri sogni e fornirvi una risposta esauriente alle vostre richieste. Di seguito alcune proposte immobiliari nell'area di Trieste.
Affidateci il vostro immobile
Affidateci il vostro immobile
I professionisti della compravendita immobiliare al vostro servizio! Chiamateci per conoscere i nostri servizi


















